The Blue
Mountain.
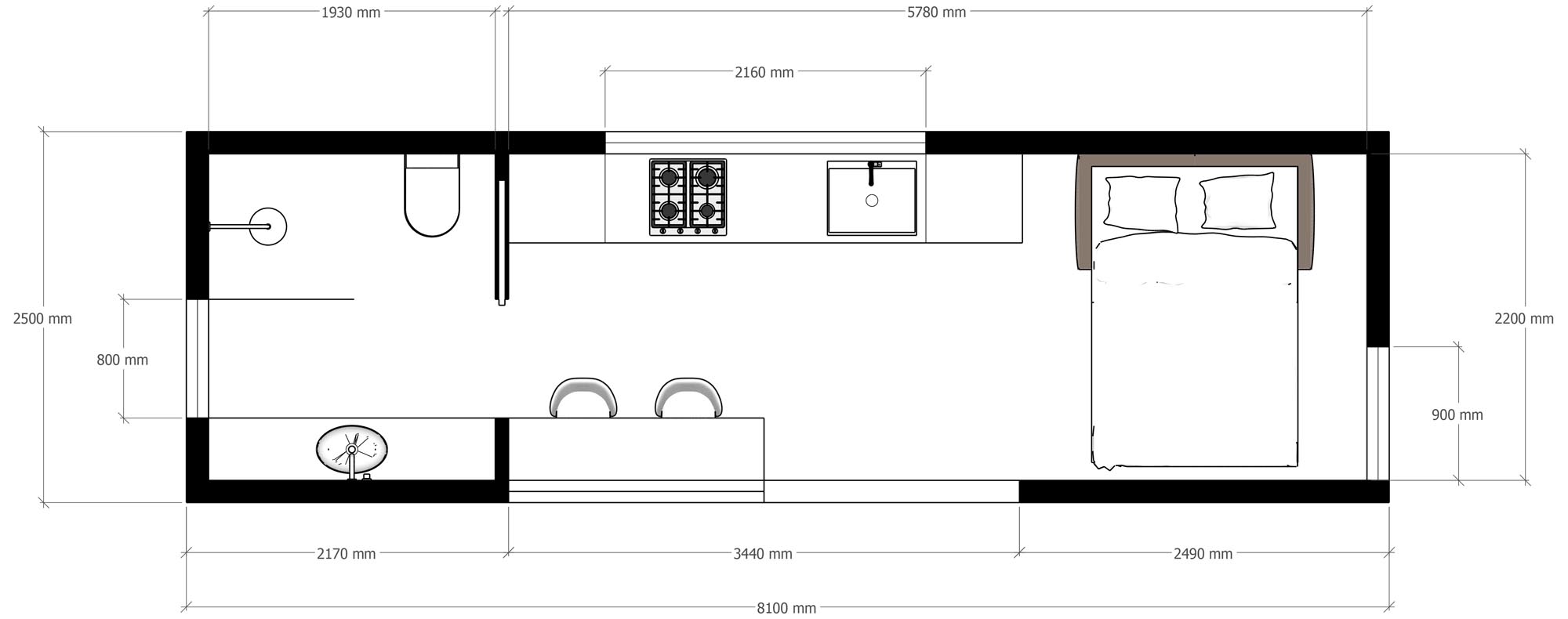
Step inside a meticulously crafted tiny house where warm, premium finishes welcome you like a well-tailored coat, a chef-ready kitchen and spa-style bathroom promise everyday luxury into this sanctuary.
This versatile tiny house works perfectly as a long-term live-in or a high-earning short-term BB rental, stylish, fully equipped, and ready to move in.
TECHNICAL SPECS
Considered
Details.
Every junction, texture, and light source is intentionally designed to ground you in the present moment.
The Living Volume
By night the open living room transforms into a snug, cleverly designed bedroom—chef-ready kitchen and spa-style bathroom by day, an enchanting retreat after dark.
Plan

